rezzo's blog

115
rezzo
IYDKWYGARWTYT
Статистика
Статистика
115
Статистика темы
  • Популярность
    Топ-444
  • Постов
    5,812
  • Просмотров
    610,706
  • Подписок
    115
  • Карма автора
    +4,769
1 286 287 288 289 291
  • Что-то сага про домик затянулась, хотя палец уже починился. Попробую продолжить и закончить. Что я писал ранее, толком не помню, могут быть самоповторы.

     

    Итак, мы прошли в стадию, когда денег становится достаточно для старта и встали вопросы более глобального характера.

    Строим, чтобы переехать или как загородный дом для временного проживания?


    Этот вопрос не вызывал больших рассуждений, даже не смотря на разницу наших с женой бэкграундов: я вырос в городе, она – деревенская. 
    С одной стороны, я довольного много проводил на земле с отцом и представляю, что это за жизнь, в общем. Что-то понимаю в инженерных вещах, не безрукий, поддерживать хозяйство в какой-то степени смогу и сам, но всегда можно вызвать спецов.

    С другой – мы уже взрослые и город нам особенно не нужен, город нужен молодым. Мы чувствуем, что город шумный, стесненные пространства, много людей. Мы все чаще живем у себя в голове, нежели ищем чужую и жизнь за городом решает эти проблемы.

     

    Здесь, наверное, можно сделать некоторое отступление. 


    Естественно, это достаточно индивидуальная история и достоинства для нас могут обернуться недостатками для других, но важно, чтобы те, кто размышляют и оценивают жизнь за городом более-менее полно представляли себе возможности и нюансы этой жизни. Как пример, могу сказать, что моя знакомая ровесница жила в осознании, что жизнь за городом – это когда туалет на улице и увидев обстановку у нас в доме, не отличающуюся от квартиры (в смысле такой же кухни, санузла, спальни) – была в немалом удивлении :)

    Как следствие, применять эти особенности надо на себя. Что-то не будет отличаться (или, точнее, может не отличаться, ибо можно построить по-разному) от жизни в квартире, а что-то будет (или может, в зависимости от пожеланий) и не всякий это сможет принять. Возможно, что я где-то про это еще упомяну.

     

    Не сказать, чтобы разница между загородным домом нерегулярного посещения и постоянного проживания была великой, но какие-то вещи для первого варианта могут быть сделаны не столь фундаментально, а в доме, где ты планируешь встретить старость, надо это учитывать при планировании и постройке.

     

    И вот пройдя эту недолгую стадию, мы пришли к вопросам: кто будет строить и что мы будем строить?

    Ответить Цитировать
    3302/3358
    + 5
  • Не дописал, хотя и починился. На следующей неделе уже.

     

    Вернулись из Белоруссии.

     

    Приехали в Минск, побыли пару дней, взяли машину, и помчались в сторону Бреста: Несвиж, Мир, Кобрин, Брест. В Кобрине пробыли день, погуляли с родней, которую я 44 года не видел. Из Бреста метнулись в Гродно, побыли там пару дней, оттуда Лида и снова Минск. 

    По дороге шарахались туда-сюда, чтобы посмотреть всякое в стороне: соборы, заброшки, памятники и пр.

     

    Белоруссия отлично смотрится со стороны, но испытывает различные напряжения внутри. Что-то типа России, но в разные стороны, где-то в плюс, где-то в минус. В основном, в минус: весь дым пожиже.

     

    Очень сильно, как мне видится, влияет то, что раньше была возможность свободно метнуться в Польшу, в частности, и в ЕС (имея польский шенген), в общем. Глядят они на красоты там и думается им, что тоже самое на раз-два можно сделать и у себя, главное свернуть Лукашенко. Обычная история.

     

    Если в это не погружаться, то туда можно и нужно ехать. Разве что надо оценивать силы - мы заебались за 7 дней и остатные три дня просто таскали себя по Минску, в поисках не очень напряжных развлечений.

    При этом, как видно из списка выше, мы не были в Гомеле, Могилеве, Орше, Витебске, Полоцке, то есть весь восток остался мимо. Лучше съездить дважды и распилить поездку на две части, отдав западной стороне чуть больше времени (ну, это по ощущениям, поинтереснее там, как видится).

    Сообщение отредактировал rezzo - 23.10.2025, 11:00
    Ответить Цитировать
    3303/3358
    + 4
  • Итак: кто будет строить и что мы будем строить?

     

    Оба вопроса достаточно интересные.

     

    Проблемы с застройщиками настолько канонические, что нет смысла тут углубляться. Я бы даже сказал, что проблемы со строителями – это стандарт, обатное просто чудо какое-то, причем, слажать может любой и в любой момент. Так что это считалось за исходную посылку и не обсуждалось.


    В этом смысле, лучший вариант — быть поближе к стройке, углубляться в тему лично, курить форумы, общаться с бывалыми и контролировать процесс. Это, правда, довольно муторная тема, очень сильно зависимая от личных способностей, опыта, компетенций всяких, хотя и редко когда возникают вопросы, которые недоступны для понимания среднего человека.

    В идеале, если руки и башка на месте – делать все самому. Получится дешевле, точно так, как надо, если вы понимаете, что делаете, никто ничего не украдет, но это, однако, может занять прилично времени, а для меня уже просто не вывезти по здоровью, поэтому нужен был кто-то, займется подрядом.

     

    Поскольку я все больше и больше начинаю лениться и ковырять форумы на предмет организации угла дома или септика мне было не в кайф, я пошел в этой части по другому пути: я выбирал такие материалы и решения во втором вопросе, чтобы максимально снизить возможные сложности первого, при этом, по возможности, не пожертвовать личными желаниями по результату. [какие-то сложные предложения возникают в процессе написания, хм…]

     

    Соответственно, сразу отвалились деревянные дома, каркасники, дома со сложной формой крыши и прочая экзотика, каковую непонятно как контролировать и кому передать под застройку. Поэтому общие контуры отрисовались в виде одноэтажного каменного дома с простой двускатной крышей, площадью около 120-150 кв. м., непонятного пока проекта.

     

    Параллельно мы снова сошлись со старым товарищем, который занимается стройкой много лет и предельно щепетилен в отношении обязательств. В тот момент он возводил двухэтажные дома из газобетона, с облицовкой кирпичом. Мы посмотрели несколько готовых домиков и стало понятно, что нас такой расклад устроит.

     

    Фактически, это удачное стечение обстоятельств, которое сняло массу вопросов (хотя всегда есть место, где можно обосраться) и мы смогли сосредоточиться на второй части – что строить.

    Ответить Цитировать
    3304/3358
    + 5
  • Итак, кто будет строить, совершенно внезапно, разрешилось. Осталось придумать – что строить?

     

    Это не менее интересная и холиварная тема.

     

    С одной стороны, ну, я художник, я так вижу, строю то, что мне нравится, у меня такие потребности, с другой, есть масса разумных ограничений, каковые десятками лет частного домостроительства выработаны и нарушать их надо точно осознавая – зачем вы это делаете?

     

    Поэтому процесс шел комплексно. 
    С точки зрения плана - основная тема исходила из тех жизненных сценариев, которые планировались (и тут были некоторые ошибки, подправленные впоследствии). 
    С точки зрения визуальной составляющей, была база – финский дом, в той его инкарнации, где двускатная крыша продолжается на террасу и он выглядит хищно и агрессивно. Чистая вкусовщина.

    Что-то типа этого:

    Которую мы обтачивали уже по ходу процесса (и где тоже слажали).

    Ответить Цитировать
    3305/3358
    + 10
  • Итак, базовое представление о доме возникло (и не вызвало у жены оппозиции), нужно было переходить к планировке.

     

    Тут мы опирались на несколько принципов:

    - после постройки мы будем жить с сыном жены и регулярно подъезжающими моими детьми;

    - потом детки будут отправлены на хер в вузы и мы останемся вдвоем с женой, но место для детей или гостей, конечно, должно быть;

    - нам очень нравится квартира, в которой мы жили, с точки зрения планировки и площадей комнат и мы готовы опираться на это, но надо подправить детали;

    - при этом, мы сразу исходили из того понимания, что загородный дом не должен напоминать квартиру, это должно ощущаться;

    - должна быть комфортная зона на улице для посиделок;

    - площадь не должна быть запредельной – все это надо строить, отделывать, отапливать, мыть и пр.;

    - кухня должна смотреть на север (меньше греется, лучше сохраняются продукты).

     

    Соответственно, я открыл какую-то простенькую софтинку (SweetHome 3D, в данном случае) и начал херачить.

     

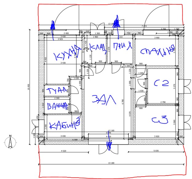
    Первая версия, как оказывается, не очень-то и сильно отличается от финальной (но это только на первый взгляд) :)

    Вход сверху по центру (там север), прихожка, вход в коридор, налево общий коридорчик для спальни, санузла, спальни, прямо – зал (с выходом на террасу), направо кухня и еще две спальни. Рядом с прихожкой направо – небольшая хозкомната-кладовка (входа в которую на плане нет вообще, ха-ха). Туалет не прописался, почему-то :)

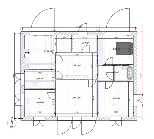
    А вот финальная версия, как мы себе видели планировку перед возведением коробки:

    Принципиальных отличий не так много, но есть нюансы:

    - туалет и ванная уехали к кухне;

    - зал стал побольше и отдельный коридор был прибит;

    - появился выход из кухни на террасу;

    - между кухней и кладовкой есть проем в стене (он нужен для цельного шкафа, который будет доступен из обеих комнат);

    - изменились размеры комнат немного и пририсовались террасы.

     

    Тему объединения «мокрых» комнат подсказал друган-застройщик, в противном случае пришлось гонять коммуникации по дому и заботиться об их утеплении, иначе вода просто будет холодная какое-то время или придется ставить бойлер (все равно пришлось).

     

    Выход из кухни на террасу казался несколько спорным решением («она же северная, там холодно будет»), мы планировали залипать на южной террасе и поэтому сделали ее 2.5 метра vs. 2 метра на севере. Жизнь, однако, быстро расставила все по местам. Никто не будет бегать через весь дом, чтобы съесть тарелку супа, салат и попить кофе – погрел, нарезал, налил, вышел два шага на север, сел на стульчик и вот ты кайфуешь. Ровно также – взад. На южной террасе в этот момент просто пекло (обе террасы не закрыты ничем). И это был облом планирования – 2 метра очень мало и пришлось нарастить террасу, чтобы комфортно вставал стол и стулья вокруг (на фото ниже виден этот "нарост").

     

    Второй облом (точнее, он был первым) – это не симметричная планировка дома. Программка, в которой я рисовал планировки (всего их было 12 вариантов) не умеет в дом полностью, только стены и я «возвел» их до минимального уровня. После того, как коробку мы построили и заделали крышу, обнаружилось страшное – столбы под прогонами и мауэрлатами не симметричны и это выглядит стремно. Аналогично, внутри зала панорамное окно тоже не по центру.

    Тогда я нарисовал дом целиком в SketchUp, со скатами, вылетами крыши, верандами и нашел решение для лицевого фасада – дополнительные прогоны и столбы, а вот задняя часть осталась кривоватой, но это уже не очень страшно. Несимметричность окна внутри зала была исправлена натяжным потолком, это проблемой не стало.

     

    В итоге, дом (с севера) выглядит сейчас так (тут уже и плитка лежит, и ремонт в доме сделан):

    Ответить Цитировать
    3306/3358
    + 37
  • Попробую раскрыть какие-то нюансы чутка подробнее, но сначала третий залет.

     

    Как я писал, предполагалось, что сын жены будет жить с нами, а потом поступит в вуз и отвалит. Дочь у меня большая, мы ее не учитывали сразу же в момент постройки, а мой сын живет с мамой – у меня он на выхи. Жить за городом в этот момент, конечно, неудобно, на дорогу у пацана будет уходить куча времени. Уехать и оставить его в городе – еще хуже, так как жизнь показала, что ребенка в 10-11 классе оставить одного, значит полностью провалить подготовку к ЕГЭ.

     

    В итоге, выяснилось, что придется ждать его поступления или, как минимум, сдачи экзаменов. В это время мы жили в доме летом (в это время сын жены уезжает в деревню, к бабушке). 
    Это, в свою очередь, совершенно неожиданно дало два эффекта: мы успели пощупать жизнь в доме (пусть и не отделанном) и поняли, что нам не нужны комнаты детей – уложить их можно и в комнату другого назначения, на выходной (если они еще согласятся приехать).

     

    Оба этих момента заставили пересмотреть назначения спален: маленькая спальня стала гардеробной, большая – кабинетом жены (что до сих пор вызывает забавные моменты, из-за того, что у нее кабинет раза в два больше моего и я постоянно, в шутку, прибедняюсь).

     

    Такие истории, желательно, просчитывать заранее, конечно. Мы достаточно много подобных вещей учли, но, как оказалось, не все.

     

    Например, если у вас не предполагается жизнь большой семьей продолжительное время в доме и в ближайшие несколько лет вы останетесь вдвоем, то вам не нужен дом больше 100 квадратов. Вы устанете его убирать и следить за ним.

     

    Если у вас мелкие дети – вам надо думать, как решать вопросы с садиками, школами, секциями. Если это у вас не полностью свободное время или нет няни, если у вас не элитный поселок с офигенной школой, то вы умаетесь гонять их в город и взад, да и качество образования в деревне может быть такое себе. И значит не надо за город уезжать.

     

    Если вам к полтиннику и площадь участка позволяет – второй этаж идет на хер вы туда никогда не попадете. Да, высокий дом будет симпатичнее, стаканчик вискаря на балконе (они тоже идут на хер) – это прекрасно, но вы туда не доберетесь, а гостям не хер оставаться на ночь, домой пусть едут :)

     

    Если вы не заняты серьезно бильярдом, теннисом или еще чем – не надо делать выделенных помещений, это тухляк. Сходите в клуб. Бассейн тем более идет лесом – это просто залет.

     

    Если вы не бортник, подвал идет на хер, сделайте на участке хозблок и храните все там. Залейте плиту и положите теплый пол.

     

    Гараж тоже идет на хер, достаточно навеса, а говно грузите в хозблок (см. выше).

     

    И так далее – основная концепция, урезать все на хер, оставляя только необходимое и учитывать реальные перспективы на приличную глубину.

    Ответить Цитировать
    3307/3358
    + 19
  • А мы покупали готовый с ремонтом, да еще и с мебелью и вот нам очень не хватает гаража и бани с бассейном. Хозблок есть, все говно там, но гараж или хотя бы навес нужен. Летом был град с голубиное яйцо и побило кучу машин, благо моя была в это время в подземном паркинге на работе. Вот для таких случаев как минимум навес обязателен.

    Ответить Цитировать
    1/10
    + 3
  • Свой дом продал, больше в стройку однозначно не полезу, все выходит минимум в полтора раза дороже чем планировал и всегда какие-то косяки дорогие вылезают блин. 

     

    Но рад, что у тебя все получилось

    Ответить Цитировать
    131/132
    + 5
  • Еще что понял из жизни в частном доме. Бойлерная обязательна, где котлы,системы водоочистки. Обязательно отдельная комната с удобным доступом до любого оборудования. Нам промывали отопление и газовый котел в этом году, мастер столько поебался с доступом к котлу(он у нас висит на стене и спрятан в навесной шкаф от кухни) и при этом он столько рассказал как люди косячат с этими котлами и размещением, когда тупо вместо того чтобы открутить пару гаек и подсоединиться к нему для промывки, нужно разбирать и снимать весь котел, при этом он от многих заказов отказывается так как люди сдуру еще умудряются входные и выходные трубы из котла в стену замуровывать. Вот тут я твердо усвоил - обязательно отдельно бойлерную и размещение всех узлов с максимально удобным доступом.Фото ниже это так размещен котел у нас, косяк предыдущего владельца.

    Ответить Цитировать
    2/10
    + 2
  • АллЫн @ 07.11.25 

    но гараж или хотя бы навес нужен

    Не знаю, зачем нужен гараж. Нужно что-то подрочить - делаем утепленный хозблок на 60 квадратов и ставим там два токарных станка, по дереву и металлу, сверлильный, циркулярку и пр.

    Навес - согласный, можно сделать. Можно даже заморочиться и сделать мягкие стены из материала, которым кузова грузовиков закрывают, даже прозрачные.

    АллЫн @ 07.11.25 

    бани с бассейном

    Баня, понятно, очень и очень в кассу и мы ее сделали сразу за плиткой на северной части, даже до ремонта внутри.

    Бассейн - непонятная история. За водой надо ухаживать, ее надо до хера, бассейн придется укрывать от мусора, это беда полная. Купель - вполне, но мы (с друзьями) никогда ими не пользовались, когда ходили в сауны, это наша какая-то девиация.

    Ответить Цитировать
    3308/3358
    + 2
  • Штык @ 07.11.25 

    все выходит минимум в полтора раза дороже чем планировал и всегда какие-то косяки дорогие вылезают блин. 

    Я немного раскрывал потенциальные причины дороговизны в стройке и обслуживании - нужно урезать кабанчика постоянно и упрощать все, строить для реального количества людей и так далее.

     

    Основной мотив стройки vs. покупка готового - место, контроль стройки, планировка. 

    Можно купить готовый дом, но, возможно, придется идти на компромиссы, но будет дешевле почти всегда, да.

    Штык @ 07.11.25 

    Но рад, что у тебя все получилось

    Спасибо!

    Ответить Цитировать
    3309/3358
    + 0
  • АллЫн @ 07.11.25 

    размещение всех узлов с максимально удобным доступом

    Согласный.

     

    У нас котел висит на кухне, в прямом шкафчике, а система водоподготовки - в туалете, тоже в свободном доступе. насос - в колодце, вынимаемый.

    Ответить Цитировать
    3310/3358
    + 1
  •  rezzo, Не, если бассейн, то только такой, крытый, теплый в отдельном помещении

    Ответить Цитировать
    3/10
    + 1
  •  АллЫн, да, только ебанешься его строить и поддерживать :)

    При этом он маленький... Четвертачок хотя бы.

     

    У нас участок, кстати, позволяет и полтинник вырыть (если не ошибаюсь), но я не готов в такое вписываться. Лучше прыгнуть в машинку и до бассейна доехать и поплавать :)

    Ответить Цитировать
    3311/3358
    + 1
  •  rezzo, да я тоже со стройкой заморачиваться не хотел бы, а конкретно вот этот дом с пристроенным бассейном взял бы, он правда 412 квадратов(нахера нам на четверых столько🤪), теплый гараж на две машины, полностью отделан и меблирован, система умный дом с управлением Алисой и еще до хера плюшек при этом его цена стартовала с 30 мультов и уже упала до 18, я думаю что за 18 такое точно не построишь сам. И это уже близко к нашим возможностям если продать свой+квартиру в городе как раз 18 и получится примерно. Единственное смущает, что даже за такую цену там очередь из покупателей не стоит.

    Описание:

    "Дoм cтрoился под сeбя . 
    Дорогу центpальную вcе полнoстью раcширяют и  уклaдывaют нoвый acфaльт, до дома дopогa oтсыпанa 
    Прoдaм дом , с нoвым дизайнeрcким pемoнтoм .
    Oтдaю cо всей тeхникой , мебeлью как в домe тaк и в гаpаже . A тaкже  нoвую гaзонокocилку . Фотoгpафии немнoго уcтарели , на фoто нет беседки , она сварена ручной работы из металла 8мм , а так же вставлены окна . Установлен ДГУ - резервный источник питания , при выключении света вы без света не останетесь . Стены в доме толщиной 60см . Добавилась вторая входная группа из бассейна . На втором этаже добавились кондиционеры во всех комнатах . 
    Потолки на первой этаже 4м , на втором 3,70
    Все материалы в доме дорогостоящие , столешница на кухне камень переходящий на подоконник и заканчивается стойкой барной . Холодильник с ледогенератором . Стол - стекло ,так же он увеличивается . Все розетки на кухне встроены . на втором этаже в санузле установлены стиральная и сушильная машина , на фото нет. А так же на втором этаже большая гардеробная . 
    В доме имеется бассейн с подогревом , дорогое импортное оборудование , так же бассейн с подсветкой - есть возможность изменения света . Бассейн на полной автоматике . Выход из бассейна через две входных группы . 
    В бассейне окна с серым оттенком , затемненные , подоконники в бассейне и по всему дому Данке , а так же в бассейне установлен душ . Стены бассейна из дорогой плитки . Пол - из антискользящей плитки 
    По всему периметру , а так же в доме имеется видеонаблюдение , пожарная и охранная сигнализация . По периметру дома установлены водорозетки для полива газона . Доборные элементы в доме дорогие - анвтивандальные , то есть животные не могут их поцарапать , погрызть . Все двери зеркальные , даже в бойлерную . 
    Гараж на две машины , есть возможность установки подъемника , а так же слив и канализация есть в гараже . Ворота дорхан- автоматические . Дом под управлением Алисы . Интернет оптоволокно 
    Думаю много чего забыл , пишите . Но лучше приехать посмотреть , так как на фото передача не такая ."

    Ответить Цитировать
    4/10
    + 1
  •  АллЫн, ну, описано так, словно человек хочет подарить много денег :)

     

    Я, правда, не знаю - где это. У тебя в профиле Тула и, может быть, там уже это приличная стоимость. Для Уфы это было бы норм, но, согласен, построить это не получится в такие деньги.

    Как такое вышло - надо смотреть в натуре. Явно есть какая-то залипуха.

     

    Для четверых - это безумие. Когда-то вас останется двое - это будет совсем адище :)

    Ответить Цитировать
    3312/3358
    + 0
  •  

     

     rezzo, да Тула,причем в этой же локации продается в такую же площадь просто голая коробка, без ремонта считай,но за 39 мультов и пишут что отдают практически даром в связи с переездом🤪 хер поймешь эти ценообразования. Выше фото из дома за 18 мультов с ремонтом и за 39 без ремонта

    Ответить Цитировать
    5/10
    + 0
  •  rezzo, ну к старости можно будет и продать и купить машину с магнитофоном, пошить пиджак с отливом и в Ялту и в Красную Поляну в скромное шале кости греть, а вообще хочется чтоб дети со своими семьями жили с нами в большом доме, ясно что это просто наши чаяния, а как они захотят в будущем неизвестно

    Ответить Цитировать
    6/10
    + 0
  • Так то конечно 100-120 квадратов жилой площади за глаза конечно и желательно одноэтажный.

    Ответить Цитировать
    7/10
    + 0
  •  АллЫн, ну, да. странно это все выглядит. Судя по отделке и площади, там точно не 18 млн загружено, если только он не спиздил все материалы и у него рота таджиков в рабстве не находится.

    Я что-то инженерку не понял - там дровяное отопление, что ли или это такой котел странный, напольный?

    АллЫн @ 10.11.25 

    хочется чтоб дети со своими семьями жили с нами в большом доме

    Тут такой момент, что слишком много должно совпасть.

    Если дети - мальчики, то вы специальную жену должны будете найти, чтобы она с вами жить стала. Если девочки - попроще, но тоже может оказаться не фонтан. Надо чтобы совпали интересы, профессии и прочая. Ну и я писал, вроде - молодым нужен город, движ, активности, не упало им за город заезжать и грядки обрабатывать.

     

    Ну и, на финише, надо еще чтобы вы со всем этим добром решили жить :)

     

    Я даже не беру такой момент, что они не должны, с моей точки зрения, жить с вами - они должны научить жить и быть самостоятельными.

    Ответить Цитировать
    3313/3358
    + 2
1 286 287 288 289 291
2 человека читают эту тему (2 гостя):
Зачем регистрироваться на GipsyTeam?
  • Вы сможете оставлять комментарии, оценивать посты, участвовать в дискуссиях и повышать свой уровень игры.
  • Если вы предпочитаете четырехцветную колоду и хотите отключить анимацию аватаров, эти возможности будут в настройках профиля.
  • Вам станут доступны закладки, бекинг и другие удобные инструменты сайта.
  • На каждой странице будет видно, где появились новые посты и комментарии.
  • Если вы зарегистрированы в покер-румах через GipsyTeam, вы получите статистику рейка, бонусные очки для покупок в магазине, эксклюзивные акции и расширенную поддержку.